SUITABLE FOR AUTOMATIC SLIDING DOORS

EI 30

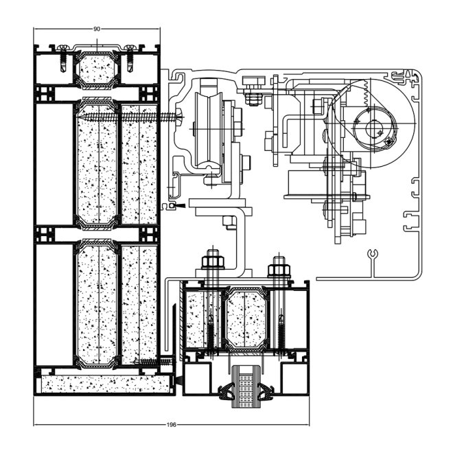
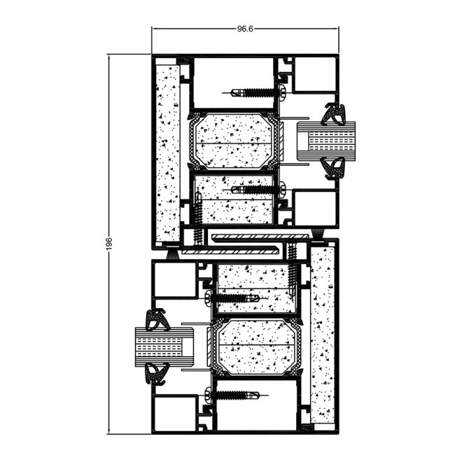
Construction features:

The profile chambers are filled with fire-rated inserts for universality and integration profiles with the aesthetic labyrinth connection of the FR90 system panels symmetrical glass panes:

• Maximum structure dimensions: 4900 mm x 3500 mm
• Maximum glass panel leaf dimensions: 1193.5 x 2339 mm
• Maximum leaf dimensions: 1369 x 2472 mm (joggle connection)

The FR90 SLIDE system provides fire protection security with a rating of EI 30 according to the specifications of PN-EN 13501-2:2016.

Exclusive automation solution: DORMA, GEZE
Structures:
• Double door
• Sliding outward
• Side and top sidelights

The FR90 SLIDE system is ideal for applications in public and commercial buildings.
Wide range of colors from the RAL palette.